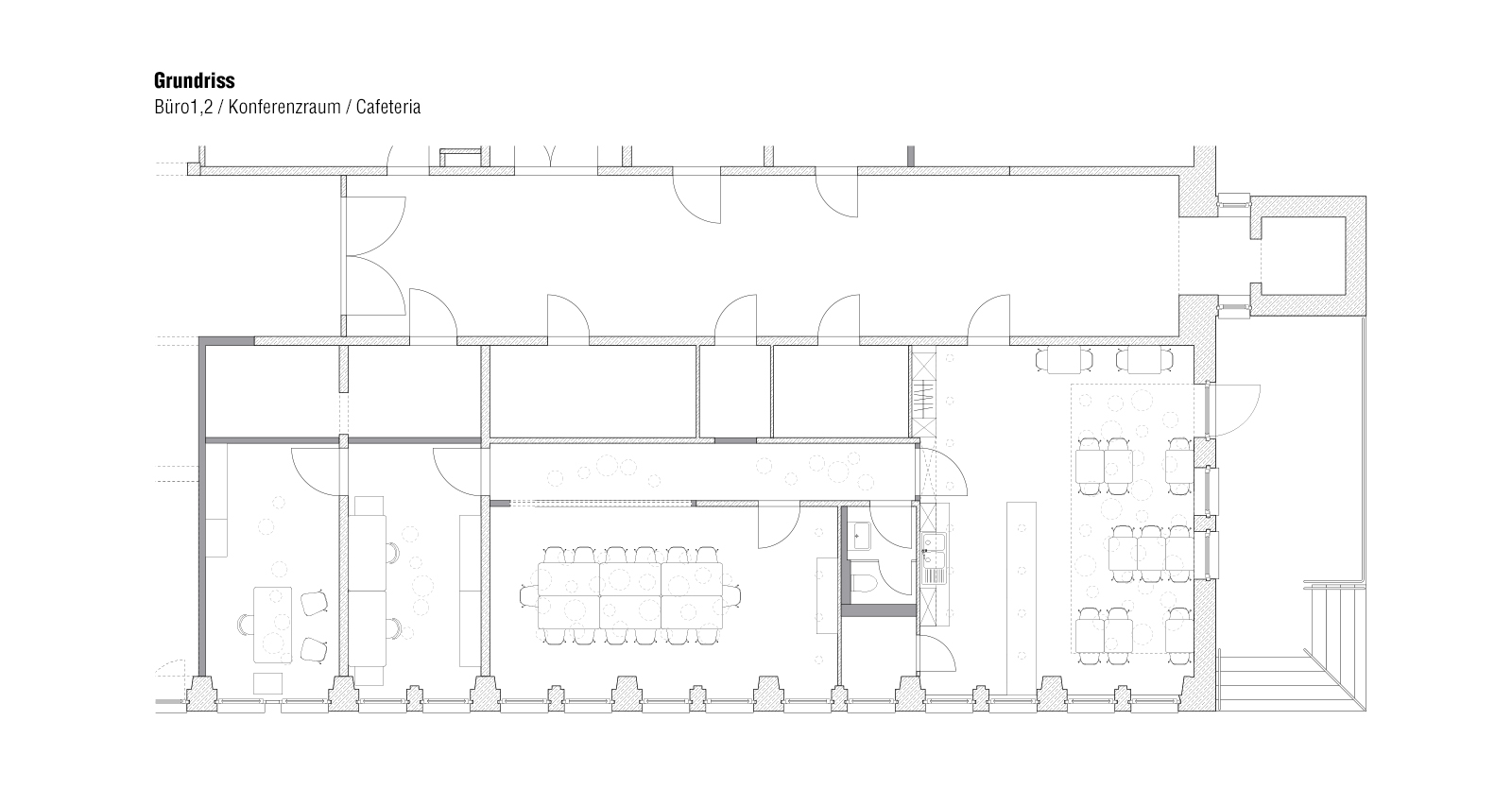
Im Zuge der Modernisierung der dreieins Grundschule in Berlin-Kaulsdorf wurde die ehemalige Hausmeisterwohnung zu
einem Bildungszentrum umgebaut. Die räumlichen Voraussetzungen waren geprägt von niedrigen Decken, robusten
Materialien wie Beton und Terrazzo sowie einer insgesamt funktionalen, wenig einladenden Atmosphäre.
Ziel war es, unter diesen baulichen Rahmenbedingungen einen offenen, niederschwelligen Ort zu schaffen, der
vielfältige Nutzungen zulässt und als Begegnungsraum für die Nachbarschaft funktioniert.
…
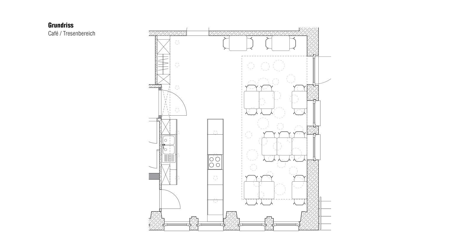
Herzstück des Zentrums ist ein Café, das bewusst als sozialer Treffpunkt für Menschen unterschiedlichen Alters und Hintergrunds gestaltet wurde. Neben klassischen gastronomischen Funktionen bietet es Raum für kreative Aktivitäten, Gruppentreffen sowie gemeinsames Kochen und Backen mit Kita- und Schulkindern. Ergänzt wird das Zentrum durch einen Seminarraum und zwei Büroräume.
Zentrales Gestaltungselement ist ein wandgreifendes Regalsystem aus unterschiedlich großen, scheinbar gestapelten Kisten. Einzelne Fächer sind geschlossen ausgeführt und schaffen Stauraum. In das System integriert ist eine Küchenzeile, die sich im gegenüberliegenden Tresen fortsetzt und den Raum funktional zusammenbindet.
Die Materialität verbindet robuste und wohnliche Elemente: Seekieferplatten treffen auf matte anthrazitfarbene und weiße Fronten. Ein grauer Linoleumboden, weiße Tische und hellblaue Sitzmöbel greifen die Corporate-Identity-Farben der dreieins innovative Pädagogik gGmbH auf und sorgen für eine freundliche Grundstimmung.
Ergänzend wurde ein Lichtkonzept entwickelt, das zugleich funktional und atmosphärisch wirkt. Unterschiedlich große Leuchtenschirme zonieren Flur und Gastraum, verbessern die Akustik und schaffen Bereiche mit eigener Stimmung. Mit einfachen Mitteln wird der Bestand geöffnet, gegliedert und spürbar aufgewertet.
Sie möchten mehr über unsere Arbeitsweise erfahren oder haben bereits ein konkretes Projekt im Kopf? Kontaktieren Sie uns gerne – wir vereinbaren mit Ihnen einen unverbindlichen Ersttermin.