Im Rahmen des Markenaufbaus der Dreieins gGmbH wurden am Standort Kaulsdorf die Räume des Hortes neu gestaltet. Die
Ausgangssituation war geprägt von hoher Farbigkeit, dichter Möblierung und wenig Orientierung. Ziel war es, unter
Einbezug bestehender Möbel eine ruhige, helle und identitätsstiftende Umgebung zu entwickeln, die die pädagogische
Haltung des Trägers räumlich sichtbar macht – klar strukturiert, anregend und zugleich entlastend.
Der Raum sollte als „dritter Erzieher“ wirken: Übergänge vom Schulalltag in die Freizeit erleichtern, Rückzug
ermöglichen und Aktivität zulassen, ohne schulisch zu erscheinen.
…
Grundlage des Konzepts ist eine bewusst reduzierte Farb- und Formensprache, die den vielfältigen Spielmaterialien einen ruhigen Rahmen gibt. Eigens entwickelte Illustrationen greifen Motive aus der Lebensrealität der Kinder auf und verbinden die Räume gestalterisch.
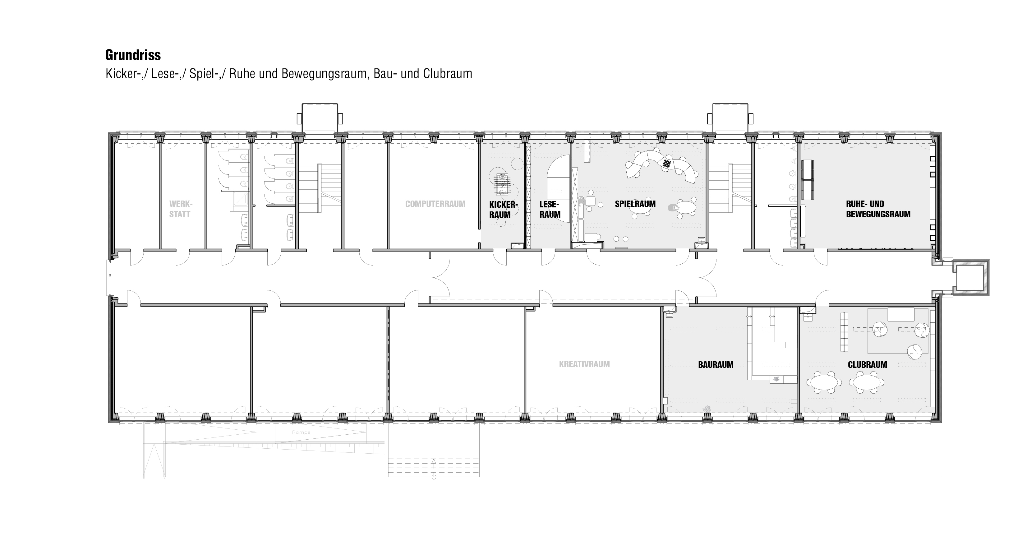
Bewegungsraum
Der Bewegungsraum vereint aktive Nutzung und Mittagsruhe. Eine neutrale Grundgestaltung bildet den Hintergrund für großformatige Illustrationen. In die Wand integrierte Eigentumsfächer verbinden Stauraum, Sitzgelegenheit und Spielimpuls; eine Kletterwand ergänzt das Bewegungsangebot.
Clubraum
Ein raumhohes Regal zoniert den großzügigen Raum und schafft Rückzug, ohne Offenheit zu verlieren. Ein Ruhebereich mit Teppich, Kissen und Filzpaneel verbessert die Akustik. Warme Materialien und gezielte Lichtakzente erzeugen eine wohnliche Atmosphäre.
Bauraum
Der Bauraum ist als konstruktiver Spielraum mit Podestlandschaft und integriertem Stauraum konzipiert. Eine beruhigte Farbpalette strukturiert das lebendige Spielgeschehen, ergänzende Acrylpaneele setzen spielerische Akzente.
Spielzimmer
Bestehende Regale wurden neu kombiniert und ergänzt. Wandfarben, flexible Tische und wiederkehrende Kreisformen greifen die Corporate Identity auf und schaffen räumlichen Zusammenhang.
Kickerraum
Der Spieltisch steht im Mittelpunkt. Akustikelemente, Filzwand und Whiteboards strukturieren den Raum und verbinden Aktivität mit Aufenthaltsqualität.
Leseraum
Eine großformatige Bücherwand bildet den ruhigen Gegenpol. Ein abgerundetes Podest mit Sitzsäcken lädt zum Lesen ein; leichte Papierlampions schaffen eine konzentrierte, zugleich spielerische Atmosphäre.
So entsteht ein Ensemble differenzierter Räume, das Orientierung gibt, Identität vermittelt und den Alltag der Kinder räumlich unterstützt.
Sie möchten mehr über unsere Arbeitsweise erfahren oder haben bereits ein konkretes Projekt im Kopf? Kontaktieren Sie uns gerne – wir vereinbaren mit Ihnen einen unverbindlichen Ersttermin.