Büro- und Verwaltungsraumgestaltung Dreieins Berlin – funktionale Räume mit gestalterischer Identität

dreieins-Verwaltung // Berlin

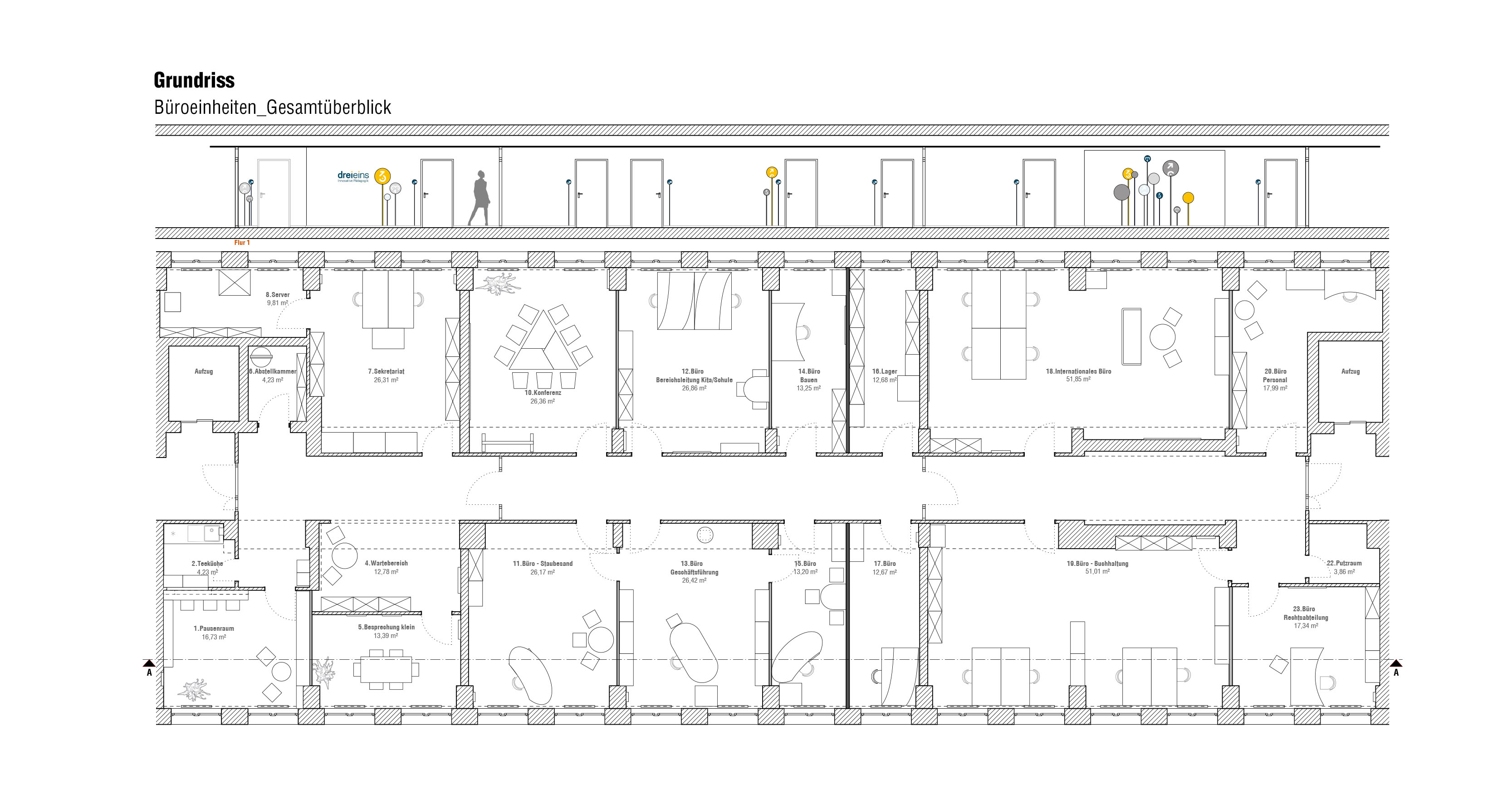
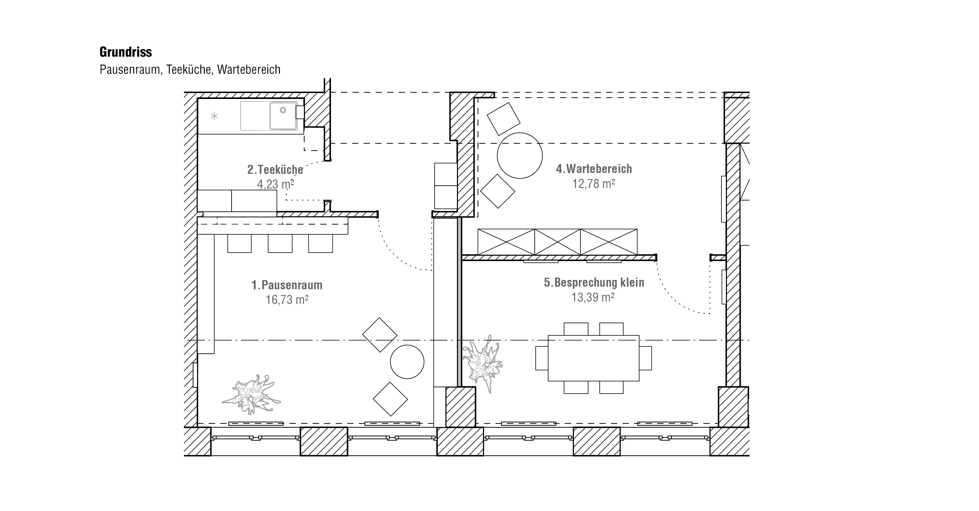
Für einen privaten Bildungsträger in Berlin wurden neue Verwaltungsräume geplant und gemäß den Vorgaben der Arbeitsstättenrichtlinie gestaltet. Die Ausgangssituation war funktional geprägt: groß geschnittene Büroräume mit geringer Aufenthaltsqualität sowie eine lediglich vier Quadratmeter große, fensterlose Teeküche, die räumlich isoliert lag. Ziel war es, eine klare Arbeitsumgebung zu schaffen und zugleich die gemeinschaftlich genutzten Bereiche aufzuwerten – funktional präzise, aber mit spürbarer Identität.  …

Fertigstellung: 07/2019
Fotos: © Z’sAM Raumkonzepte

Zeitraum 2019
Ort Bürogebäude, Berlin
Nutzfläche ca. 436 m²
Nutzergruppe Bildungsträger, Verwaltung, Mitarbeitende
Leistungsumfang LPH1-3,5
Schwerpunkte Bürogestaltung, Aufenthaltsbereiche, CI-Integration
Ziel / Besonderheiten Arbeits-/Aufenthaltsqualität, Identität
CTA-Button
dreieinsVW-Foto1
dreieinsVW-Foto2
dreieinsVW-Foto3
dreieinsVW-Foto4
dreieinsVW-Foto5
dreieinsVW-Bestand1
dreieinsVW-Bestand2
dreieinsVW-Rendering1
dreieinsVW-Rendering2
dreieinsVW-Rendering3
dreieinsVW-Grundriss1
dreieinsVW-Grundriss2
No module Published on Offcanvas position