Wohnen-KreativMühle-Mücheln

KreativMühle // Mücheln (Geiseltalsee)

In der historischen Wassermühle „Kreativmühle“ in Mücheln sollten Ferienwohnungen entstehen, die den rauen Charakter des Bestands bewahren – und zugleich zeitgemäßen Komfort ermöglichen. Die Herausforderung lag darin, die vorhandene Substanz nicht zu überformen, sondern sie bewusst weiterzudenken: Konstruktion sichtbar lassen, Räume ruhig zonieren und eine Atmosphäre schaffen, die selbstverständlich wirkt – klar, reduziert und mit spürbarem Bezug zur Geschichte des Ortes.  …

Fertigstellung: 04/2018
Fotos: © Z’sAM Raumkonzepte

Zeitraum 2016–2019
Ort Mücheln, Sachsen-Anhalt
Nutzfläche ca. 232 m²
Nutzergruppe Feriengäste, Kurzzeitwohnen
Leistungsumfang LPH1-3,5
Schwerpunkte Bestand, Ferienwohnen, Raumstruktur
Ziel / Besonderheiten Historischer Kontext, Raumfluss, Aufenthaltsqualität
CTA-Button
FEWO1-Deckblatt
FEWO1-Foto1
FEWO1-Foto2
FEWO1-Foto3
FEWO1-Bestand1
FEWO1-Bestand3
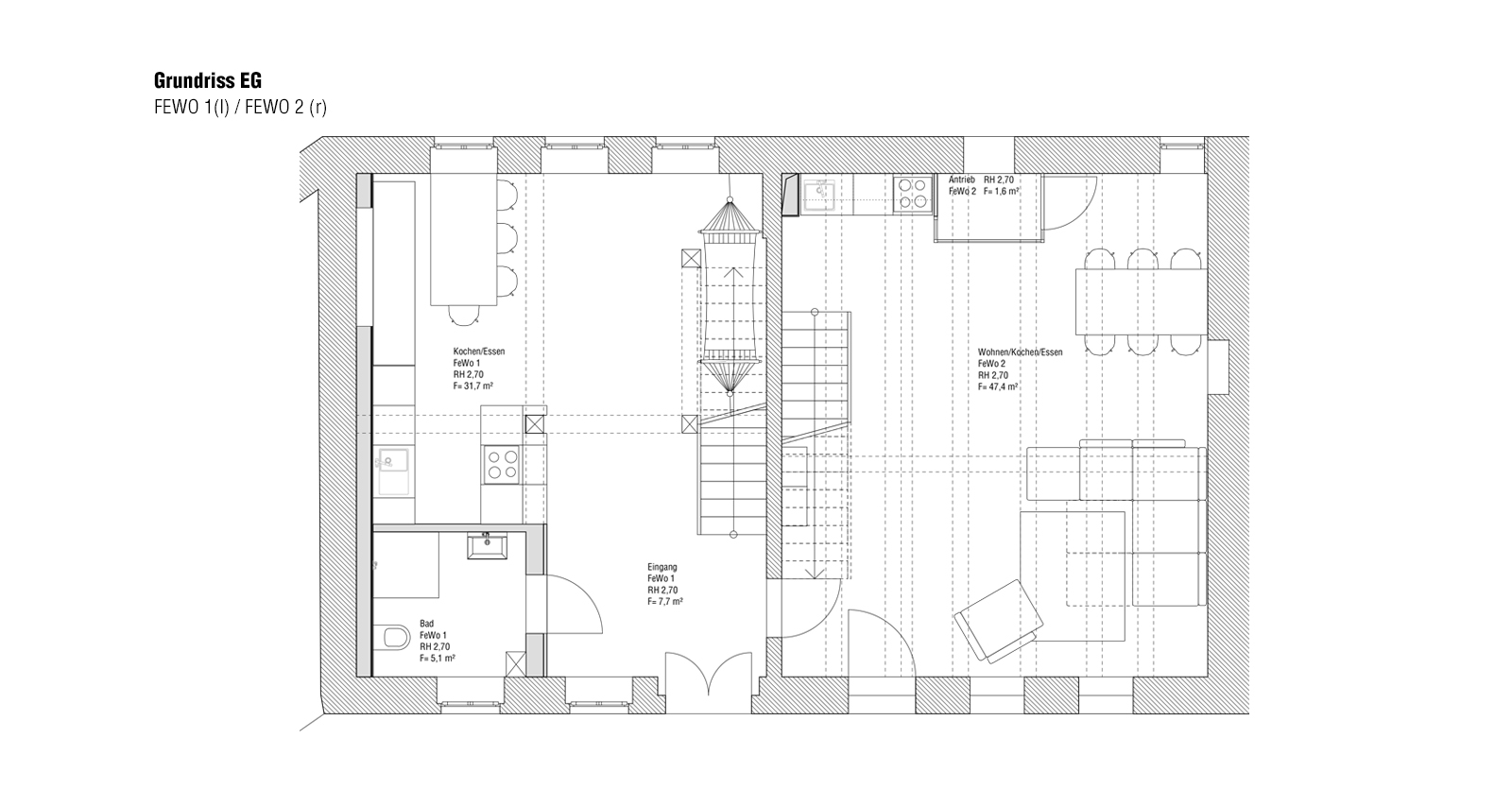
FEWO1+2-EG
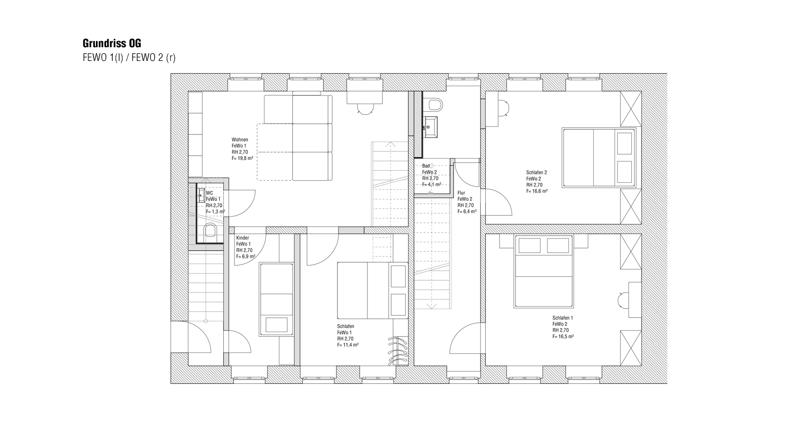
FEWO1+2-OG
FEWO1-Ansichten1
FEWO1_Rendering1
FEWO2-Deckblatt
FEWO2-Foto1
FEWO2-Foto2
FEWO2-Foto3
FEWO2-Foto4
FEWO2-Foto5
FEWO2-Foto6
FEWO2-Foto7
FEWO2-Foto8
FEWO2-Foto9
FEWO2-Foto10
FEWO2-Foto11
FEWO2-Rendering1
FEWO2_Rendering2
FEWODG-Deckblatt
FEWODG-Foto1
FEWODG-Foto2
FEWODG-Foto3
FEWODG-Foto4
FEWODG-Foto5
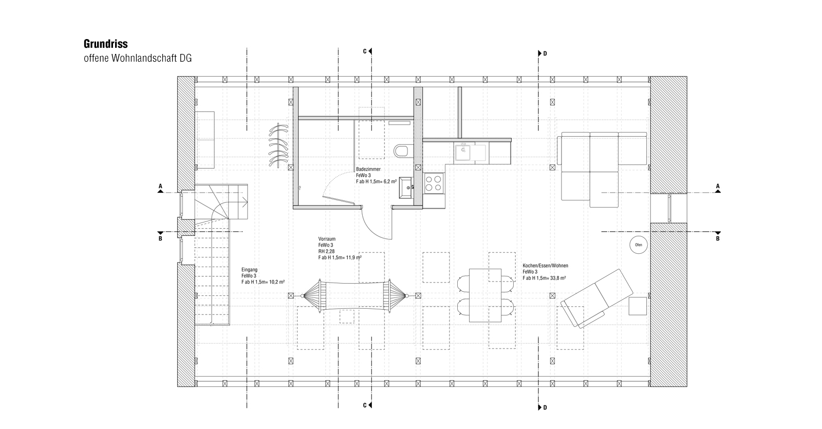
FEWODG-Grundriss
FEWODG-Ansicht1
FEWODG-Ansicht2
FEWODG-Bestand1
FEWODG-Rendering1
FEWODG-Rendering2
FEWODG-Rendering3
No module Published on Offcanvas position