
Jools - Café und Restaurant // Hamburg
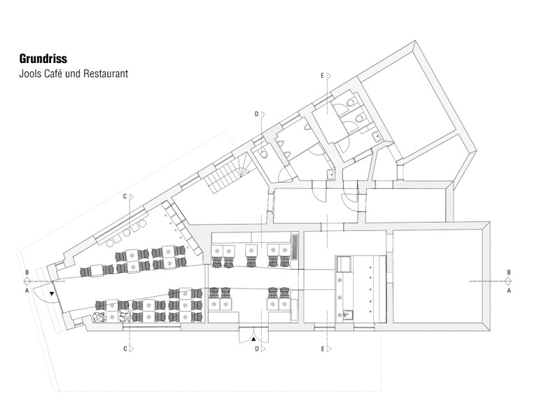
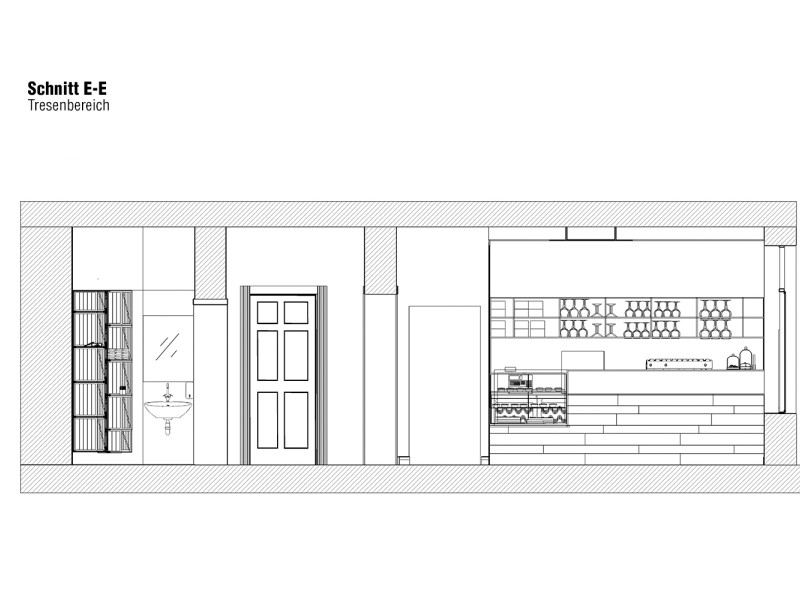
Das Café und Restaurant Jools liegt in einem historischen Eckhaus in Hamburg Ottensen und besteht aus drei hintereinander liegenden Räumen. Um den Tresen im hintersten Raum in den Fokus des Gastes zu lenken, wird die Flucht vom Eingang zum Tresen durch ein beleuchtetes Deckenpaneel betont. Dieses hebt sich zusätzlich durch sein strahlendes weiß von der sonst komplett grau-beigen Wand- und Deckenfarbe ab.
Weiteres zentrales Gestaltungselement für die junge Gastronomie sind die wandgreifenden Regale im Gastraum und hinter dem Tresen. Im ersten Raum ist eine große „Erzeugerkiste“ in das Regal eingelassen, in der wöchentlich wechselnd ein Produkt in den Fokus gestellt wird, mit welchem in diesem Zeitraum besonders viel gekocht wird.
Geprägt ist der Entwurf neben dem Altbaubestand durch den Einsatz innovativer und unüblicher Materialien wie Eternit für die Regale, Leuchten aus Keramikschaum und recyceltes Palettenholz.
Fertigstellung: 12/14
 Fotos: © M. Patze
 
                
                
                
                                
                             
                
                
                
                                
                             
                
                
                
                                
                             
                
                
                
                                
                             
                
                
                
                                
                             
                
                
                
                                
                             
                
                
                
                                
                             
                
                
                
                                
                             
                
                
                
                                
                             
                
                
                
                                
                             
                
                
                
                                
                             
                
                
                
                                
                            

 
                                                             
                                                             
                                                             
                                                             
                                                             
                                                             
                                                             
                                                             
                                                             
                                                             
                                                            